1 Bagni 90 m2
Caratteristiche principali
Prezzo
800 EUR / mese
Classe
G (112,74 [kWh/m³a])
Locali
1
Altre caratteristiche e accessori
Stato Immobile
Buono
Orientamento
Nord
Lati Liberi
1
Riscaldamento
Autonomo
Tipo Riscaldam.
Caldaia
Tipo Impianto
Radiatori
Fonte Energetica
Metano
Acqua Calda
Autonoma
Raffrescamento
Split
Infissi
PVC Doppio Vetro
Serramenti
Buono
Pavim. Bagno
Ceramica
Pavimento
Ceramica
Cauzione
Tre Mesi
Canoni Anticipati
Tre Mesi
Tipo Contratto
6+6 Anni
Destinazione
Artigianale
Accesso Disabili
Nessuna Barriera
Accessori
Aria Condizionata, Bagno Handicap, Cancello Elettrico, Passaggio Automobilistico, Passaggio Pedonale
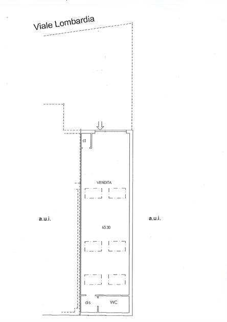
Busto Arsizio, viale Lombardia 2 (prossimità zona ex mercato) affittiamo particolare soluzione di ufficio al piano terra con area privata per parcheggio.
L'immobile dispone di accesso carraio con cancello motorizzato, in comune con altra attività oltre che accesso pedonale privato, entrambi da viale Lombardia, oltre a comoda area esterna privata per parcheggio di 3 veicoli.
L'ufficio è costituito da un open-space che misura metri 17 di profondità e metri 5 di larghezza.
Impianto di riscaldamento termoautonomo con caldaia murale e pannelli radianti, impianto di condizionamento a soffitto, impianto elettrico a norma completo di illuminazione ad incasso.
Lucernari motorizzati.
Serranda esterna per chiusura vetrina di ingresso motorizzata.
Possibilita' di installare insegne pubblicitarie luminose anche di grandi dimensioni.
Classe energetica G IPE KWh/mca 112,74.
Canone richiesto € 800 mensili (NON soggetto ad IVA),
NESSUNA SPESA CONDOMINIALE.
Rif. C538
viale Lombardia 2, Busto Arsizio (VA)
Cookie preference